×

ANNUNCI IMMOBILIARI -> IN VENDITA

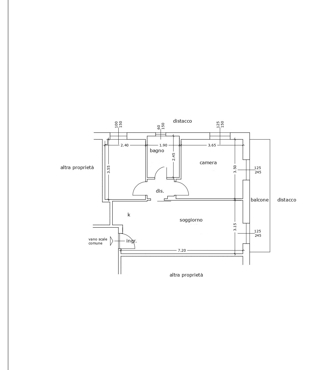
CODICE INSERZIONE: Trilocale in vendita in Via Privata Paolo Tubino, 10

IN VENDITA

MQ: 65
STATO: Nuovo
RISCALDAMENTO: Centralizzato
CAMERE: 2
BAGNI: 1
CUCINA: Angolo Cottura
BALCONI: 1
TERRAZZI: 0
BOX: Assente
GIARDINO: No
CANTINA: 1
PIANO: 2
ACCESSORI: Ascensore, VideoCitofono, PortaBlindata, Esposizione Interna, Esposizione Esterna

 

€ 258.000,00

APPARTAMENTO A DUE PASSI DAL CENTRO DI RAPALLO APPARTAMENTO A DUE PASSI DAL CENTRO DI RAPALLO, con gradevole vista nel verde. L`appartamento con tutti i negozi e i servizi sotto casa, ristrutturato e perfettamente arredato risulta essere così composto: ingresso, soggiorno con angolo cottura, camera da letto matrimoniale, camera da letto, ampia balconata, un` ottima cantina sotto casa. L`alloggio risulta essere un ottima opportunità, anche per investimento, ideale casa vacanza a Rapallo. Possibilità di avere in zona un comodo posto auto in affitto. Per maggiori informazioni potete contattarci al: 0185.50810 (Tel) oppure consultare il nostro sito internet: gruppolazzerini. com.